![]() |
|
O. 514-937-3718 |
Mont-Royal, Québec
MLS: 22789979
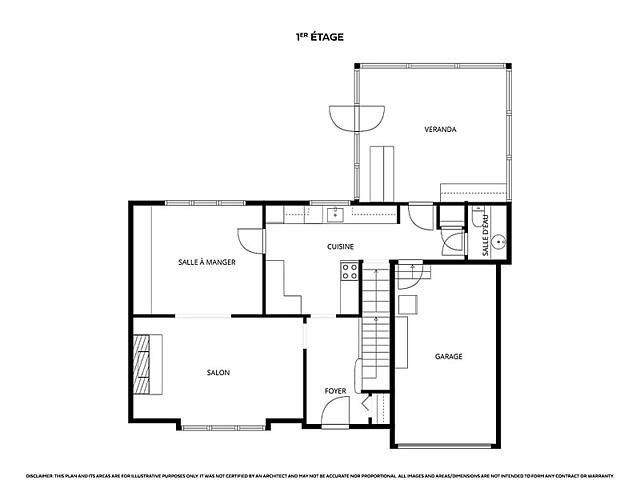
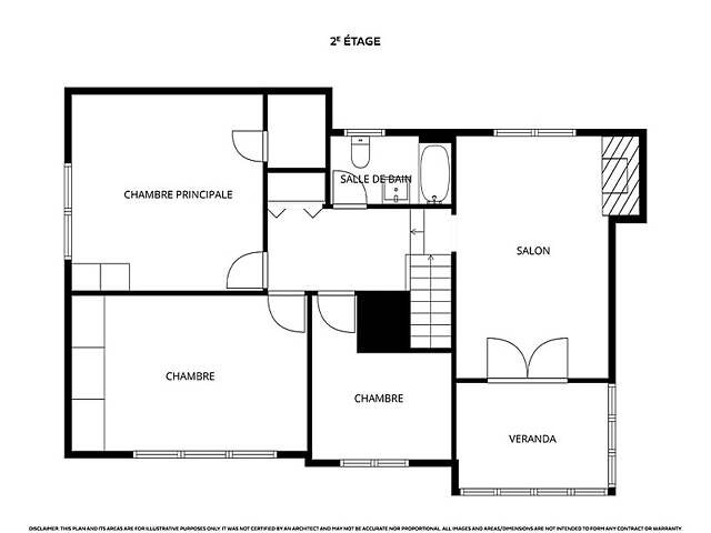
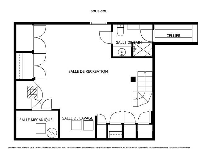
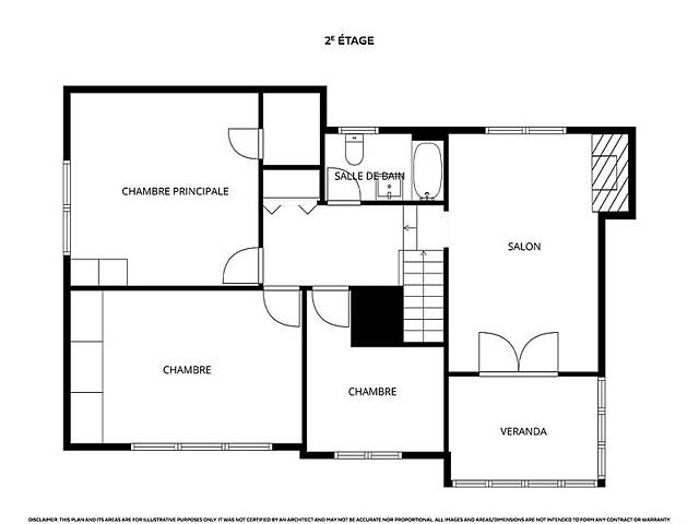
44 Av. Highfield
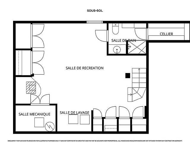
| Lot Size: | 5,024 ft2 |
| Bedrooms: | 4 |
| Bathrooms: | 2 |
| Half Baths: | 1 |
| Taxes: |
$11,717 (Municipal 2025) $1,436 (School 2025) |
| Built in: | 1951 |
$1,695,000
Elegant Family Home in the Heart of Town of Mount-Royal. Nestled on a quiet, tree-lined street in the heart of Town of Mount-Royal, this charming single-family residence offers an exceptional setting for refined family living. Perfectly situated just steps from renowned elementary schools, the REM, and the town center, this home combines timeless character with outstanding potential.
























